Sheridan Hotel, Telluride
       
     
New Sheridan Hotel Suites
       
     
Axonometrics
       
     
Plans
       
     
Sections
       
     
Sheridan Hotel, Telluride
       
     
Sheridan Hotel, Telluride

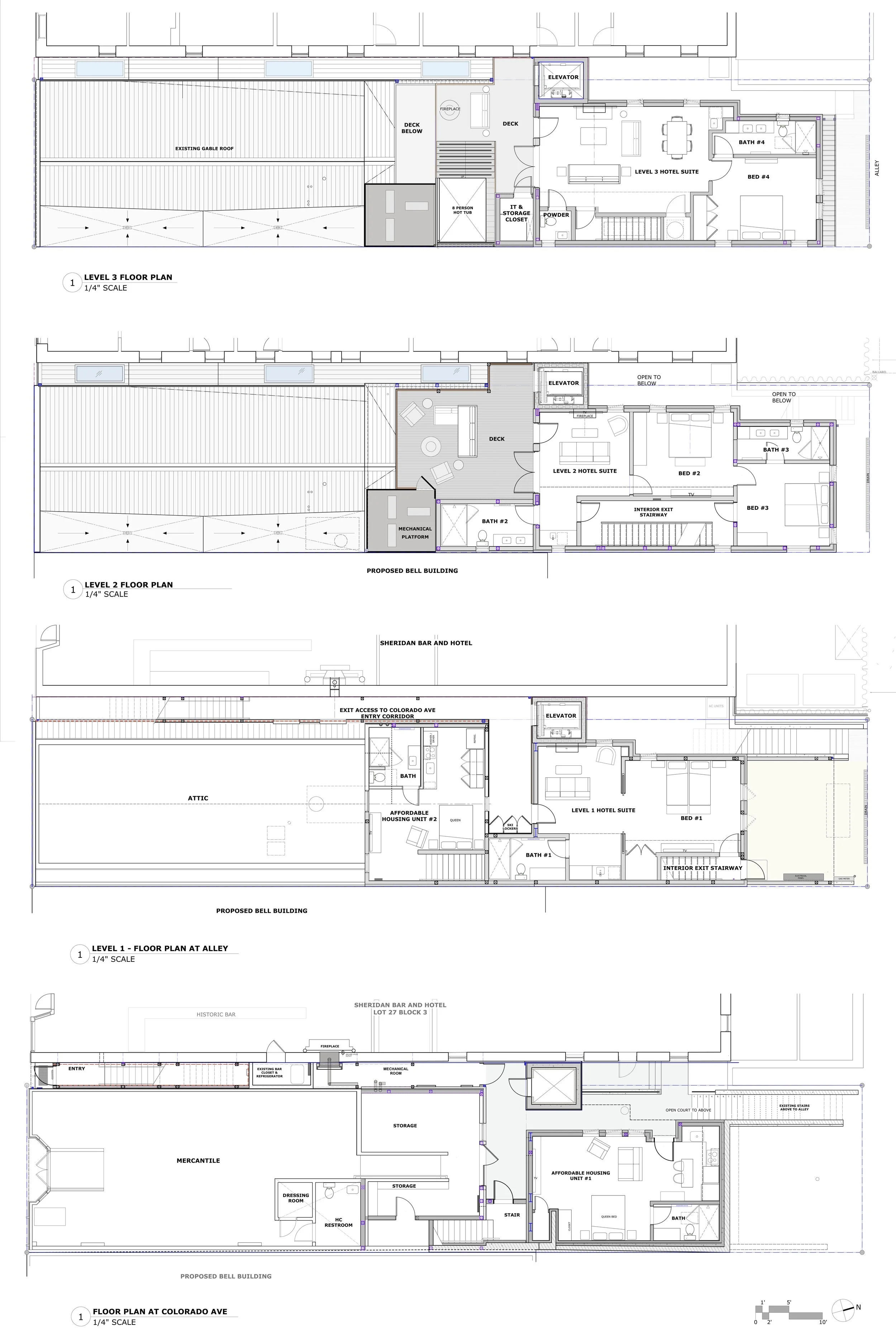
The iconic Sheridan Hotel in Telluride was built in 1895, is one of the most meticulously restored buildings in Telluride.The addition project will add 4 king bedroom suites over 3 floors that can be combined as one for groups of 8-14 guests. The suites include three living areas and two decks to provide a variety of rooms to the historical layout of the existing hotel. . Aside from the hotel suites I have worked on the building for years to provide a historic brick analysis and management plan, repair areas where needed, and restore details at the entryways and historic fireplace.

New Sheridan Hotel Suites
       
     
New Sheridan Hotel Suites

The addition to the historic hotel sits back from Colorado Ave and is compatible with the Sheridan Opera house and other buildings in the alley. The views to the east are of the box canyon from the hotel suites, and views from the decks to the south are to the ski resort and Colorado Street. It also provides 2 affordable housing units for hotel staff.

Axonometrics
       
     
Axonometrics

The project creates over 4,500 sqft of housing and rentable hotel suites to provide a modern option to the individual 26 historic suites that can be combined into one 3 level hotel suite. The project has planning approval through 2026.

Plans
       
     
Plans
Sections
       
     
Sections